Обяви За нас Контакти
Дава под Наем ФОТОГРАФСКО СТУДИО
град Стара Загора, Аязмото
920.33 €
1 800 лв.

(6.14 €, 12 лв./m2)
Не се начислява ДДС
Коригирана в 18:49 на 30 януари, 2026 год.
Обявата е посетена 52 пъти.
Площ:
150 m2

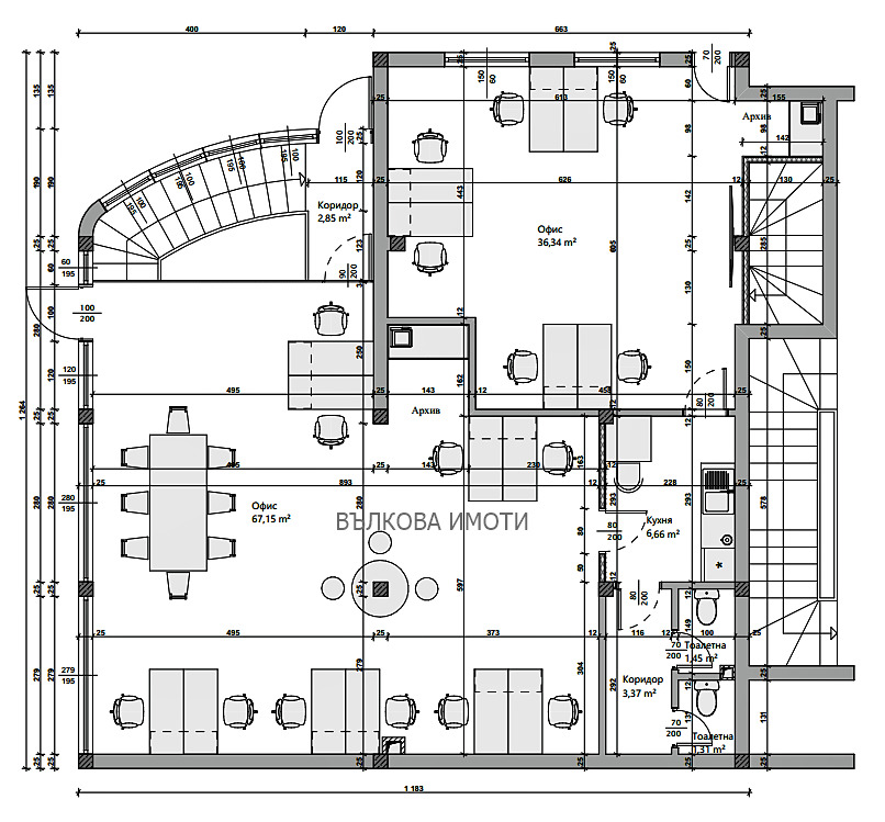
Описание на имота:


ВЪЛКОВА ИМОТИ дава под наем 150 кв. м помещение на партер, в сграда ново строителство, на тиха улица в района под Аязмото. Състои се от едно помещение 36. 34 кв. м, второ помещение 67. 15 кв. м, коридори, два санитарни възела, кухня и тераса. Помещенията са взаимосвързани, но имат и два самостоятелни входа- при необходимост. Извършва се цялостен ремонт и модернизиране. С много голяма витрина и осветеност.
Подходящо за офиси, кантора, студио за красота, детска занималня, детски център, фотографско студио, ателие за услуги, др.
🔑 За повече информация и оглед на имота - в офиса на ВЪЛКОВА ИМОТИ, на бул. ''Патриарх Евтимий'' 118, ет. 1, офис 7, гр. Стара Загора.
📱 За контакт: 0895459957; 0885355715
📧 Е-mail: valkova_imoti@abv.bg
💻 Всички оферти на ВЪЛКОВА ИМОТИ: https://valkova.imot.bg/
▶️ Всички видеоклипове на ВЪЛКОВА ИМОТИ: https://www.youtube.com/channel/UCsAmT5cw6Cno9l_XnMAMFcQ/videos
Особености
Необзаведен
Окабеляване
Интернет връзка
За контакт:
0895459957

Този имот се предлага само на частни лица
Агенция:
ВЪЛКОВА ИМОТИ
0895459957; 0885355715
ВЪЛКОВА ИМОТИ logo
Медал за прослужено време
В imot.bg от 2008 г.
valkova.imot.bg
Адрес:
област Стара Загора, гр. Стара Загора, бул. ''Патриарх Евтимий'' 118, ет. 1, офис 7
http://www.valkova.imot.bg
ИЗПРАТИ ЗАПИТВАНЕ
ИЗПРАТИ ЗАПИТВАНЕТО

Дава под Наем ФОТОГРАФСКО СТУДИО
град Стара Загора, Аязмото
Обява: 2u160414533599256

920.33 €
1 800 лв.
(6.14 €, 12 лв./m2)

Не се начислява ДДС
ЗАПАЗИ ОБЯВАТА

Местоположение: град Стара Загора, Аязмото

Допълнителни данни за имотите в района и сравнение с други райони

Покажи

Период

и 2 месеца

* Средните цени са определени чрез медианна стойност